
早朝、開け放されたリビングの床に木々の影を落とします。

















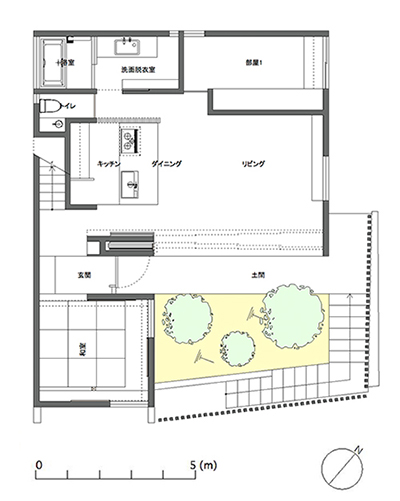
間取り

建築概要
・杉の格子で囲われた中庭|五月が丘の家所 在 大阪府吹田市五月が丘
家族構成 夫婦、子供一人
構 造 木造2階建+地階コンクリート造
設計期間 2011.06~2012.05
施工期間 2012.06-2013.01
敷地面積 43.2坪
建築面積 80.05 m2
延床面積 168.77 m2
各階床面積 B階 39.03m2 1階 80.05 m2 2階 49.69 m2
地域・地区 第一,二種中高層住居専用地域
宅地造成規制区域 法22条地域 第三種高度地区
外部仕上げ 屋根/ガルバリウム鋼鈑
外壁/杉板 ウッドロング・エコ 中庭/土間・階段:洗い出し
内部仕上げ
玄関ホール/床:洗い出し
壁・天井:AEP 土間:洗い出し
一階:LDK・居室
床:ボルドーパイン リボスオイル
壁:AEP
天井:AEP
二階:居室
床:ボルドーパイン リボスオイル
壁:AEP
天井:AEP